无锡威纳普自控设备有限公司

全国咨询热线: 0510 - 8541 5590
专注智慧设施控制领域十多年
威纳普自控为建筑设施数字化控制和
信息数据交互提供国际水平的整体解决方案
提供有价值的思路和模式,帮助客户创新创值

压力传感器

    产品概述

    · 高精度测量
    · 测量范围:相对压力 0 - 60 bar
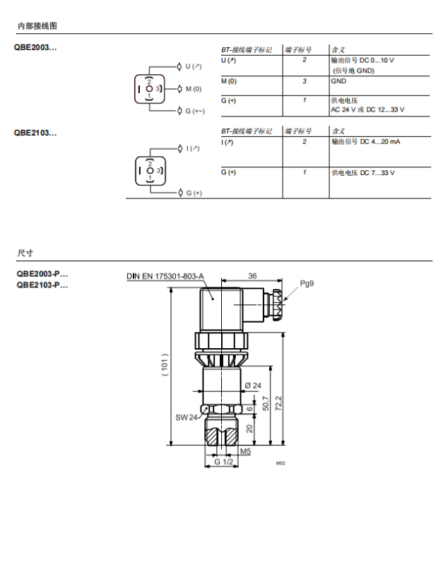
    · 供电电压 AC 24 V / DC 12...33 V 或 DC 7…33 V
    · DC 0 ...10 V 或 DC 4…20 mA 输出信号
    · 测量不受温度变化影响
    · 高耐热性
    · 连接:外螺纹 G ½", 内螺纹 M5
    · 长期稳定性,免维护
    · 高过载阻抗
    · 稳固简洁的结构设计
    用途
    压力传感器适用于 HVAC 应用中的相对压力的测量,特殊应用是液体和气体(蒸汽)做
    介质的液压和气动系统。